PrenajatéPEKNÝ ROD.DOM NA PRENÁJOM, M.R.Štefánika, TREBIŠOV
| Číslo inzerátu: | ZLDM0315TV |
| Kraj: | Košický kraj |
| Obec: | Trebišov |
| Ulica: | M.R.Štefánika |
| Financovanie: | Vlastné zdroje |
| Internet: | áno |
| Zateplenie: | áno |
| Parkovanie: | dostatočná kapacita |
| Konštrukcia: | kvádrová |
| Počet izieb: | 2 a 2,5 |
| Typ nehnuteľnosti: | rodinný dom |
| Stav nehnuteľnosti: | novostavba |
| Vek stavby: | 5 |
| Obytná plocha: | 75 m2 |
| Mesačné náklady: | 150 € |
Popis nehnuteľnosti
Výhradne u nás ponúkame do prenájmu na bývanie rodinný dom s terasou, dvorom a úžitkovou časťou.
- nehnuteľnosť má charakter novostavby, kolaudovaná bola v r. 2021
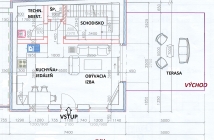
- obytná plocha je 76 m2 z toho 38 m2 je prízemie a 37 m2 zaberá podkrovie, terasa má 25 m2
- dobrú predstavu o dispozícii poskytne pôdorys obidvoch podlaží a 3D prehliadka na tomto odkaze: https://rb.gy/5bbeos
- nehnuteľnosť sa ponúka na prenájom spolu s nábytkom a zariadením
- vonkajšiu časť tvorí: upravený dvor cca 2,5 ára a úžitkový priestor 77 m2 (garáž, dielňa, rekreačná miestnosť)
- priaznivá orientácia na svetové strany: východ-juh- západ, stavba je zateplená
- pripojenie na všetky inž.siete, na odber plynu a elektriny sa nájomca prihlasuje individuálne (zálohové platby spolu 150 Eur/mesiac)
- vykurovanie v dome je riešené kondenzačným plynovým kotlom v kombinácii s pieckou na drevo, ktorá je súčasťou teplovodnej sústavy (možno kombinovať alebo úplne nahradiť)
- nehnuteľnosť je umiestnená na hlavnej ulici, no vo vnútornom uzavretom dvore, čo poskytuje dostatok súkromia
- požadovaný je 2-mesačný depozit plus platba za aktuálne bežiaci mesiac
V prípade vážneho záujmu prosíme vyplniť dotazník na tomto odkaze: https://rb.gy/bokesf
Výborná lokalita v južnej časti mesta, v pešom dosahu 5-10 minút sa nachádza kompletná občianska vybavenosť okresného mesta.
Ak máte záujem o obhliadku, prípadne potrebujete viac informácii, nájdete nás na ul.M.R.Štefánika 68/11 (oproti Lidlu, vedľa Brutusa) v Trebišove alebo na zavadiakova@archeus.sk, tel.c: 0944 309 102.
Zodpovedný maklér
Mgr. Lenka Zavadiaková
tel.: +421 944 309 102
e-mail: zavadiakova@archeus.sk
Kontakt na pobočku
ARCHEUS reality Trebišov
ulica: M. R. Štefánika 11
tel.: +421 944 309 102
e-mail: kontakt.tv@archeus.sk
Zdieľať
Posledné referencie
Som spokojná s prístupom vášho realitného makléra predovšetkým s fotodokumentáciou a prezentáciou nehnuteľnosti.
”












