Predané2 IZBOVÝ BYT, NOVOSTAVBA, BARDEJOV, ZAFÍROVÁ UL., B362
| Číslo inzerátu: | FMBT0946BJ |
| Kraj: | Prešovský kraj |
| Obec: | Bardejov |
| Ulica: | Zafírová |
| Typ nehnuteľnosti: | Byty |
| Financovanie: | Vlastné zdroje/Hypotéka |
| Parkovanie: | vlastné parkovacie miesta |
| Stav nehnuteľnosti: | novostavba |
| Počet izieb: | 2 a 2,5 |
| Rozloha: | 41 m2 |
| Poschodie: | 2/2 |
| Osobný výťah: | áno |
| Balkón: | áno - 3 m2 |
| Pivnica: | áno |
Popis nehnuteľnosti
Ponúkame vám na predaj 2 izbový byt v novostavbe Biele piesky, na ulici Zafírová v Bardejove, mestská časť Dlhá Lúka.
Biele piesky vyrástli v príjemnom prostredí, na križovatke dvoch ciest. Jedna cesta vás spája priamo s mestom Bardejov a druhá vás privedie do Bardejovských Kúpeľov, najviac obľúbenej športovo - relaxačnej lokality.
Bývanie na Bielych pieskoch je ideálnou voľbou náročného klienta s aktívnym životným štýlom, ktorý túži po modernom zelenom bývaní a záleží mu na budúcnosti planéty.
Generálnym dodávateľom stavby je popredná stavebná spoločnosť STRABAG.
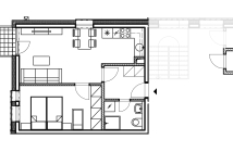
Byt pozostáva z: predsiene, obývacej izby spojenej s kuchyňou, spálne, kúpeľne s WC, balkóna a kobky na poschodí bytu
- výmera 40,96 m2 + loggia 2,96 m2
- orientácia - západ
- poschodie - 3 NP
- kobka na poschodí
- 8 miestny výťah (630kg)
- správca bytového domu Bardbyt
- detské ihrisko
- najmodernejšie ekologicky udržateľné technológie, ako fotovoltaický systém, ktorý poháňa tepelné čerpadlo a rekuperačné jednotky s antivírusovou filtráciou. Investície do udržateľného domova sa oplatia - prinášajú vám komfort a sú šetrné k životnému prostrediu i vašej peňaženke
- nízke náklady na bývanie
Komfort bývania dopĺňa možnosť vlastného parkovania - v podzemnej garáži alebo na vonkajšom parkovacom mieste.
Okolie rezidencie je monitorované kamerovým systémom pre maximálny pocit bezpečia.
Predaj bytu v stave holobyt:
- Interiérové omietky v jednej vrstve sádrové
- Maľby interiérové biele v dvoch náteroch
- Podlahy ukončené poterom v úrovni - 15 mm od nášľapnej vrstvy podlahy
- Vstupné dvere do bytu bezpečnostné s požiarnou odolnosťou v štandardnej RAL
- Okná a balkónové dvere - PVC, Antracit RAL 7016 - exteriér, Biela - interiér, Profily: GEALAN - LINEAR 74mm
- Okenné profily 6 komorové so stredovým tesnením - izolačné trojsklo
- Balkónové dvere - krídlové
- Keramická dlažba na balkóne
- Dátové rozvody a rozvody TV - optická zásuvka (T-com) nainštalovaná v obývacej izbe, metalické rozvody do izieb (podľa projektu ELI) dotiahnuté k optickej zásuvke
- Elektrická zásuvka na logii
- Voľné vývody pre klimatizáciu
- Príprava elektriny na vonkajšie žalúzie s vypínačom
- Vykurovanie - podlahové teplovodné (tepelné čerpadlo)
- Elektroinštalácia - osadené koncové prvky (zásuvky a vypínače), videovrátnik, svetelné rozvody ukončené bez svietidiel (osadené wago svorky)
- lokálne rekuperačné jednotky v každej izbe so samostatnou reguláciou + nástenný ovládač
Byty na Bielych Pieskoch už boli skolaudované.
Mysleli sme aj na rodiny s deťmi, ktoré často vyhľadávajú bezpečné pokojné prostredie na okraji mesta. Priamo na Bielych pieskoch je preto nové detské ihrisko a trávnaté plochy pre oddych, kde budete môcť spoločne s vašimi deťmi a kamarátmi zo susedstva tráviť čas na čerstvom vzduchu.
O lokalite:
Bývaním v danej lokalite oceníte blízkosť Bardejovských Kúpeľov a Bardejova či už na trvalé alebo sezónne bývanie. Strategická poloha projektu a možnosť blízkej rekreácie poteší človeka, ktorý netrávi všetok voľný čas zavretý doma. Na každodenné starosti zabudnete v kúpeľnom prostredí v Bardejovských Kúpeľov so širokým športovým, rekreačným a oddychovým vyžitím s bohatou občianskou vybavenosťou.
Biele piesky sú vzdialené
- 5 km od centra mesta Bardejov
- 2 km od Bardejovských Kúpeľov
- 17 km od lyžiarskeho strediska Regetovka
- 17 km od kúpaliska a lyžiarskeho strediska Moja Makovica
- 27 km od veľkého lyžiarskeho strediska a kúpeľného mesta v Poľsku Krynica Zdroj
- 5 minút peši materská škola, základná škola, potraviny, krčma, kostol v Dlhej Lúke
V prípadne, ak potrebujete viac informácii, nájdete nás v ARCHEUS reality Bardejov, na Radničnom námestí č.2 v Bardejove alebo ma kontaktujte na tel.č. 0918 738 958 ferekova@archeus.sk .Váš certifikovaný realitný maklér NARKS – Mária Fereková
Kontakt na pobočku
ARCHEUS reality Bardejov
ulica: Radničné námestie 2
tel.: +421 917 500 250
e-mail: kontakt.bj@archeus.sk
Zdieľať
Posledné referencie
Chceli by sme sa veľmi pekne poďakovať pani Ferekovej za spoluprácu pri kúpe nehnuteľnosti. Všetko prebehlo rýchlo. Oceňujem jej profesionalitu, komunikáciu a znalosti trhu. Ďakujeme!
"M. B."
”Podobné nehnuteľnosti
2,5 IZBOVÝ BYT NA PREDAJ, SVIANTEKA, BARDEJOV
120.000 € DOTYK ELEGANCIE Bardejov
3 IZBOVÝ BYT, NOVOSTAVBA, BARDEJOV, ZAFÍROVÁ UL., B153
Na vyžiadanie v RK
3 IZBOVÝ BYT, NOVOSTAVBA, BARDEJOV, ZAFÍROVÁ UL., A123
Na vyžiadanie v RK VHODNÝ AJ AKO INVESTÍCIA Exkluzívne Bardejov
PREDAJ - 2 IZBOVÝ BYT S LODŽIOU, SVOBODU, BARDEJOV
119.980 €
5 IZBOVÝ MEZONET S TERASOU, DLHÝ RAD, BARDEJOV CENTRUM
184.000 € NOVÝ, PRIESTRANNÝ V TICHEJ LOKALITE Exkluzívne Bardejov
PREDAJ - 3 IZBOVÝ BYT S GARÁŽOU A LOGGIAMI, KURIMA, BARDEJOV
160.000 € | 149.000 €
PREDAJ - 3 IZBOVÝ BYT S LOGGIOU, NOVOMESKÉHO, BARDEJOV
135.000 € VÝBORNÁ LOKALITA Exkluzívne Bardejov


















