3D / EXKLUZÍVNE / RODINNÝ DOM, KEŽMAROK, ĽUBICKÁ CESTA
| Číslo inzerátu: | HVDM0104KK |
| Kraj: | Prešovský kraj |
| Obec: | Kežmarok |
| Ulica: | Ľubická cesta |
| Financovanie: | Vlastné zdroje/Hypotéka |
| Parkovanie: | vlastné parkovisko |
| Konštrukcia: | zmiešaná |
| Počet izieb: | 3 a 3,5 |
| Typ nehnuteľnosti: | rodinný dom |
| Stav nehnuteľnosti: | pôvodný |
| Výmera pozemku: | 433 m2 |
Popis nehnuteľnosti
🏡 EXKLUZÍVNE LEN U NÁS!
ARCHEUS reality Kežmarok Vám ponúka na predaj rodinný dom vo výbornej lokalite mesta Kežmarok! 🌞
Tento útulný domček sa nachádza na rovinatom a slnečnom pozemku, v pokojnej časti mesta, a je ako stvorený pre pohodlné rodinné bývanie, ale aj ako sídlo firmy či chalupa pre víkendový oddych! 🌿
👉 3D OBHLIADKA:
🎥 https://bit.ly/3D_OBHLIADKA_DOM_KEZMAROK_HVDM0104KK
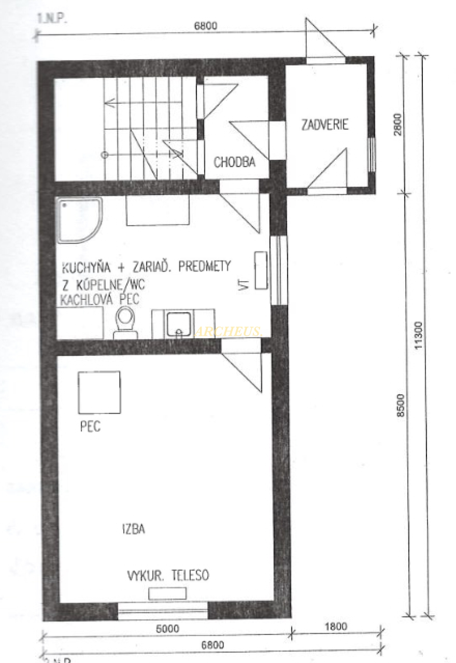
🏠 POPIS DOMU:
-
📐 Pozemok: 433 m² (šírka 10 m x dĺžka 45 m)
-
🏗️ Zastavaná plocha: 60 m²
-
🏡 Dvojpodlažný, čiastočne podpivničený
-
🪵 Zmiešaná konštrukcia
-
🔥 Vykurovanie: gamatky, 2x kachľová pec
-
💧 Teplá voda: elektrický bojler
-
🌳 Záhrada "tak akurát" – priestor na pestovanie aj oddych
-
🔌 Napojený na elektrinu, plyn, vodu a kanalizáciu
-
🏚️ Súčasťou je aj dreváreň
-
🧱 Čiastočná rekonštrukcia – plastové okná, nová plechová strecha
-
🪵 Drevené palubové podlahy, drevený krov
-
📜 Osobné vlastníctvo
📍 LOKALITA:
Vyhľadávaná časť mesta Kežmarok s kompletnou občianskou vybavenosťou – školy, škôlky, obchody, zdravotné stredisko, reštaurácie i rekreačné možnosti na dosah ruky. 🚶♀️
Perfektná dostupnosť a príjemné prostredie robia z tejto ponuky ideálne miesto pre rodinu alebo podnikanie! 💼
UPREDNOSTNENÝ BUDE ZÁUJEMCA S NAJVYŠŠOU PONUKOU!
💬 Zaujala vás táto ponuka?
Neváhajte a dohodnite si obhliadku čo najskôr!
📞 0918 743 047
📩 host@archeus.sk
💛 ARCHEUS reality Kežmarok – Váš spoľahlivý partner pri predaji aj kúpe nehnuteľností.
Pomôžeme vám aj s financovaním, právnym servisom a všetkým, čo k tomu patrí.
✨ TEŠÍME SA NA OSOBNÉ STRETNUTIE NA VAŠEJ BUDÚCEJ NOVEJ ADRESE! ✨
Zodpovedný maklér
RNDr. Vlastimil Host, RSc.
tel.: +421 918 743 047
e-mail: host@archeus.sk
Kontakt na pobočku
ARCHEUS reality Kežmarok
ulica: Baštová 18
tel.: +421 918 743 047
e-mail: kontakt.kk@archeus.sk
Zdieľať
Posledné referencie
Veľmi milý, komunikatívny, ústretový, Odporúčam! 10 z 10.
”Podobné nehnuteľnosti
3D /EXKLUZÍVNE / RODINNÝ DOM, HUNCOVCE (KEŽMAROK), 540m2
274.900 € ihneď k dispozícií Exkluzívne Kežmarok
3D/ EXKLUZÍVNE/rodinný dom, poz. 371 m2, Pradiareň, Kežmarok
183.000 €
EXKLUZÍVNE/4 izb. dom – hrubá stavba, 738 m2, Malý Slavkov
232.720 € výborná lokalita, krásne výhľady Malý Slavkov












