Novostavba RD Žihárec - Šaľa
| Číslo inzerátu: | SRDM0105NR |
| Kraj: | Nitriansky kraj |
| Obec: | Žihárec |
| Ulica: | Žihárec |
| Financovanie: | Vlastné zdroje/Hypotéka |
| Konštrukcia: | tehlová |
| Počet izieb: | 4 a 4,5 |
| Typ nehnuteľnosti: | rodinný dom |
| Stav nehnuteľnosti: | novostavba |
| Výmera pozemku: | 467 m2 |
Popis nehnuteľnosti
ARCHEUS realitná kancelária
Ponúkame na predaj krásnu novostavbu 4-izbového rodinného domu nachádzajúceho sa na pozemku o veľkosti 467 m2 v obci Žihárec - Šaľa.
3D obhliadka: https://2home-sk-s-r-o.vr-360-tour.com/e/UC0Bml7qky0/e?initvars.autorotate.enabled=true
Dom sa predáva v štádiu holodomu alebo s možnosťou dokončenia domu do štandardu.
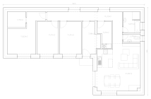
Dispozičné riešenie domu je nasledovné:
• vstupná terasa
• predsieň
• toaleta
• technická miestnosť
• obývacia izba spojená s jedálňou a kuchyňou
• izba
• izba
• kúpeľňa
• izba
• terasa
Na stavbe rodinného domu boli použité tieto stavebné materiály:
• múry tehla 300 mmm Termobrik
• strecha - Fatrafol so spádovým polystyrénom a izolácia 400 mm
• fasádna farba je biela omietka
• okná plastové sú 3 sklo a farba antracitovosivej
• vchodové dvere hliníkové a terasové dvere francúzske hliníkové
• predpríprava na vonkajšie žalúzie
• predpríprava na kamerový systém, alarm a elektrický vrátnik
Interiér domu pozostáva z:
• podláh s podlahovým poterom, ktorý je pripravený na pokladík dlažby a plávajúcej podlahy
• v dome je podlahové elektrické teplovodné kúrenie
• taktiež sú v dome kompletné rozvody elektriny, vypínače a elektrické zásuvky
• je tu aj príprava na pripojenie ďalších dátových sietí - internet
• na stenach je biela omietka a základ 2x malovky
• v dome sa nachádza aj zásobník na teplú vodu - kotol
• taktiež sú tu kompletné sadrokartóny
• a príprava na krb
Exteriér domu je aktuálne v štádiu:
• pozemok, ktorý bude vyrovnaný so zemou zo základov
• betónová terasa
• a oplotenie pozemku
• a tiež vstupná brana na súkromnú príjazdovú cestu.
Zodpovedný maklér
Ing. Roman Sedláček
tel.: +421 905 222 095
e-mail: sedlacek@archeus.sk
Kontakt na pobočku
ARCHEUS reality Nitra
ulica: Párovská 42
tel.: +421905 222 095
e-mail: kontakt.nr@archeus.sk
Zdieľať
Posledné referencie
Pozdravujem pán Sedláček, s Vašou prácou realitného makléra som bol spokojný.
Prajem Vám veľa úspechov a spokojných klientov.
S pozdravom Ivan Slíž












