Novostavba Residencia – Vlora, Albánsko
Popis nehnuteľnosti
🌊 Residencia: Luxus v 1. línii na Lungomare, Vlora
Objavte prémiový developerský projekt, kde sa moderná architektúra stretáva s nekonečným azúrom Jadranského mora. 🇦🇱
Residencia je situovaná v najprestížnejšej lokalite Albánska – priamo na ikonickej pobrežnej promenáde Lungomare. Tento projekt je dokonalým spojením komfortného prímorského bývania a bezpečnej investície s vysokým zhodnotením.
✨ Architektúra, ktorá dýcha
Projekt tvorí dominantná 11-poschodová budova s unikátnym dynamickým dizajnom. Stupňovité riešenie a rozdelenie do troch prepojených blokov prináša:
- ☀️ Maximálne preslnenie každého apartmánu.
- 📐 Priestranné terasy a verandy s dychberúcim výhľadom.
- 🔒 Vyššiu úroveň súkromia pre všetkých rezidentov.
🏗️ Špičková technológia a štandard
Stavba využíva najmodernejší systém vetranej fasády, ktorý zaručuje:
- 🌡️ Energetickú efektívnosť a tepelný komfort v lete aj v zime.
- 🔇 Špičkovú zvukovú izoláciu pre váš nerušený pokoj.
- 🛡️ Dlhú životnosť materiálov odolných voči morskej vlhkosti.
- 🪟 Low-E sklá, ktoré chránia interiér pred prehriatím, no zachovávajú panoramatické výhľady.
🏠 Rezidenčný koncept
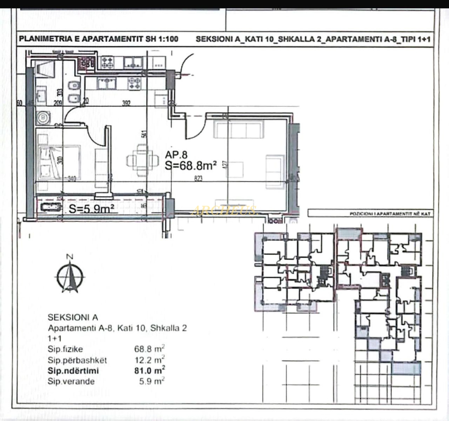
V ponuke nájdete 1-izbové, 2-izbové a 3-izbové apartmány. Odovzdávajú sa v stave hrubej stavby, čo vám dáva jedinečnú možnosť navrhnúť si interiér presne podľa vášho vkusu a potrieb.
- 🛗 8 moderných výťahov zabezpečuje rýchly pohyb v rámci budovy.
- 🅿️ 2 podzemné podlažia vyhradené pre bezpečné parkovanie.
- 🛒 Obchodné priestory priamo v objekte pre maximálne pohodlie.
📍 Lokalita: Srdce Vlory
Bývať na Lungomare znamená mať všetko na dosah ruky:
- 🏖️ Pláž a more hneď za dverami.
- ☕ Najlepšie reštaurácie a kaviarne v meste.
- 🏃 Športové zóny a relaxačné parky.
- 🛍️ Kompletná občianska vybavenosť v pešej dostupnosti.
📊 Základné informácie a ceny
Lokalita: Vlora – Lungomare, Albánsko 🇦🇱
Stav: Hrubá stavba (individuálne dokončenie)
Parkovanie: K dispozícii od 11 000 € 🚗
Dokončenie: December 2026 🗓️
Vlastníctvo: Certifikát do konca roka 2026 📑
📈 Prečo investovať práve tu?
Albánsko zažíva turistický rozmach a Vlora je jeho korunovaným klenotom. Poseidon Residencia ponúka:
- Rast hodnoty: Nehnuteľnosti v 1. línii sú najstabilnejšou investíciou.
- Výnos z prenájmu: Obrovský dopyt po luxusnom ubytovaní (sezónne aj celoročne).
- Bezpečný prístav: Uloženie kapitálu v nehnuteľnosti pri mori.
📞 Zaujal vás tento projekt?
Nečakajte, kým sa najlepšie apartmány vypredajú. Kontaktujte nás ešte dnes a radi vám zašleme aktuálny cenník a pôdorysy voľných jednotiek!
Váš nový život pri mori začína tu. 🌊
Zodpovedný maklér
Ing. Rastislav Štalmach
tel.: +421 948 88 11 28
e-mail: stalmach@archeus.sk
Kontakt na pobočku
ARCHEUS - Albánske nehnuteľnosti
ulica: Pribinová
tel.: +421 948 881 128
e-mail: zahranicie@archeus.sk












