Pozemok v záhradkárskej zóne, aj na stavbu domu, Bratislava
| Číslo inzerátu: | JZPO0002BA2 |
| Kraj: | Bratislavský kraj |
| Obec: | Bratislava - Záhorská Bystrica |
| Ulica: | Strmé Vŕšky |
| Typ pozemku: | rekreačný a záhrada |
| Výmera pozemku: | 386 m2 |
| Pripravenosť: | schválený územný plán |
| Siete: | elektrina |
Popis nehnuteľnosti
Realitná kancelária Archeus Bratislava Vám exkluzívne ponúka na predaj jedinečný pozemok v žiadanej lokalite Bratislavy, v mestskej časti Záhorská Bystrica, neďaleko lesa a s vynikajúcim prístupom ku všetkým službám.
Tento pozemok sa nachádza v záhradkarskej oblasti Strmé Vŕšky v tesnej blízkosti lesa, s možnosťou rekreačného alebo celoročného využitia. Táto lokalita majiteľovi ponúka maximálne ticho a súkromie. Pozemok je slnečný.
Na pozemku sa aktuálne nachádza udržiavaný trávnatý porast, kríky, stromy, ale aj malá záhradná chatka s terasou, ktorá môže slúžiť aj ako dočasné bývanie alebo skladový priestor počas výstavby.
ZÁKLADNÉ PARAMETRE:
- Lokalita: Strmé Vŕšky, katastrálne územie Záhorská Bystrica, Okres Bratislava IV
- Veľkosť pozemku: 386 m2 (16 m2 zastavaná plocha, 315 m2 v osobnom vlastníctve, 71 m2 - jeden okrajový trojuholník čaká na vysporiadanie (je to spoločný velikánsky pozemok kde sa prevádza spoluvlastnický podiel - čaká sa úradne na rozdelenie parcely na príslušné časti) - nezapočítava sa do ceny, budúci majiteľ ho dostane do užívania)
- V cene sú aj podiely na prístupových cestách v záhradkarskej oblasti
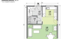
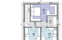
- Možné je postaviť rekreačný dom, zastavaná plocha cca 50-55 m2 s podkrovím alebo ustúpeným podlažím (príklad pôdorysu 4 izbového domu, ktorý by bolo možné realizovať nájdete vo fotkách)
CHARAKTERISTIKA POZEMKU:
- Pozemok s miernym sklonom a slnečný
- Prístupová cesta poľná na poslednom pomerne krátkom úseku.
- Inžinierske siete - prípojka elektriny (aktuálne s novou revíziou), vodu je možné zabezpečiť vlastnou studňou
- Na pozemku sa nachádza záhradná chatka (1 miestnosť + pivnica)
- Pozemok sa nachádza v záhradkarskej zóne (väčšina pozemkov je obývaná už celoročne), možnosť postaviť rekreačný dom
LOKALITA:
Záhorská Bystrica je obľúbená mestská časť Bratislavy, ktorá si zachovala vidiecky charakter a pokojné prostredie, napriek tomu, že je súčasťou hlavného mesta. Nachádza sa na úpätí Malých Karpát a je známa krásnou prírodou, lesmi a množstvom turistických chodníkov a cyklotrás.
Vďaka svojej polohe ponúka ideálne spojenie kvalitného bývania v prírode s rýchlou dostupnosťou do centra mesta (autom približne 15 minút, MHD dostupná).
V okolí nájdete všetku potrebnú občiansku vybavenosť – obchody, reštaurácie, školu, škôlku, kostol, zdravotné stredisko, lekárene, športové a oddychové areály, knižnica a iné. Oblasť je obľúbená medzi rodinami aj ľuďmi, ktorí hľadajú pokoj, súkromie a blízkosť lesa, no zároveň nechcú opustiť mesto.
Záhorská Bystrica sa v posledných rokoch dynamicky rozvíja, čo z nej robí výbornú lokalitu na bývanie aj investíciu.
Nezmeškajte túto jedinečnú ponuku!
Neváhajte a kontaktujte nás ešte dnes, aby ste si dohodli obhliadku tejto výnimočnej nehnuteľnosti!
V inzeráte je zobrazená aj vizualizácia ako by mohol vyzerať váš nový vysnívaný domov!
Cena 90 000 EUR je konečná, vrátane provízie a kompletného právneho a katastrálneho servisu.
Možnosť financovania aj cez hypotekárny úver, ktorý Vám bezplatne sprostredkujeme. Zabezpečíme všetko potrebné vrátane profesionálneho právneho a hypotekárneho poradenstva až po odovzdanie nehnuteľnosti.
Ak máte záujem o obhliadku, prípadne potrebujete viac informácií kontaktujte ma na telefónnom čísle Ing. Zuzana Janotová 0951 082 404 alebo emailom na janotova@archeus.sk.
Fotografie, videá a text sú autorským dielom a majetkom spoločnosti Archeus.
Zodpovedný maklér
Ing. Zuzana Janotová
tel.: +421 951 082 404
e-mail: janotova@archeus.sk
Kontakt na pobočku
ARCHEUS Euroveatower Bratislava
ulica: Pribinova 38
tel.: +421 903 725 678
e-mail: bratislava@archeus.sk
Zdieľať
Posledné referencie
Bola som spokojná s vašou prácou, promtne ste mi našli nájomnika. O všetko som u vás mala postarané, určite vás budem aj ďalej odporúčať. Zo skúseností môžem povedať, že najlepšia realitka s ktorou som sa doposiaľ stretla. Ďakujem krásne. Určite sa na Vás aj do budúcna obrátim.
”























