PRENÁJOM – Výrobné haly a admin. priestory Lipany/ Dubovica
| Číslo inzerátu: | SJKP0003PO |
| Kraj: | Prešovský kraj |
| Obec: | Dubovica |
| Ulica: | Dubovica/Lipany |
| Parkovanie: | vlastné parkovacie miesta |
| Typ nehnuteľnosti: | Výrobné priestory |
| Rozloha nehnuteľnosti: | 1165 m2 |
Popis nehnuteľnosti
PRENÁJOM – VÝROBNÉ HALY A KANCELÁRSKE PRIESTORY
Lipany – Dubovica
Na prenájom ponúkame funkčný a kompletne vybavený priemyselný areál v stabilizovanej priemyselnej zóne Lipany – Dubovica. Areál disponuje výrobnými halami, skladovými priestormi a moderným administratívnym zázemím, čo z neho robí atraktívne aktívum s okamžitým výnosovým potenciálom a možnosťou ďalšieho rozvoja.
Základná charakteristika areálu
- oplotený a uzavretý priemyselný areál
- spevnené parkovacie a manipulačné plochy z cestných panelov
- výborná dostupnosť a logistické napojenie
- kompletné inžinierske siete: voda, kanalizácia, elektrina (220/380 V), plyn, internet
- okolitá zástavba: ľahká výroba, sklady, prevádzkové objekty
Areál je vhodný pre výrobu, skladovanie, logistiku alebo kombináciu s administratívou.
Popis areálu a budov
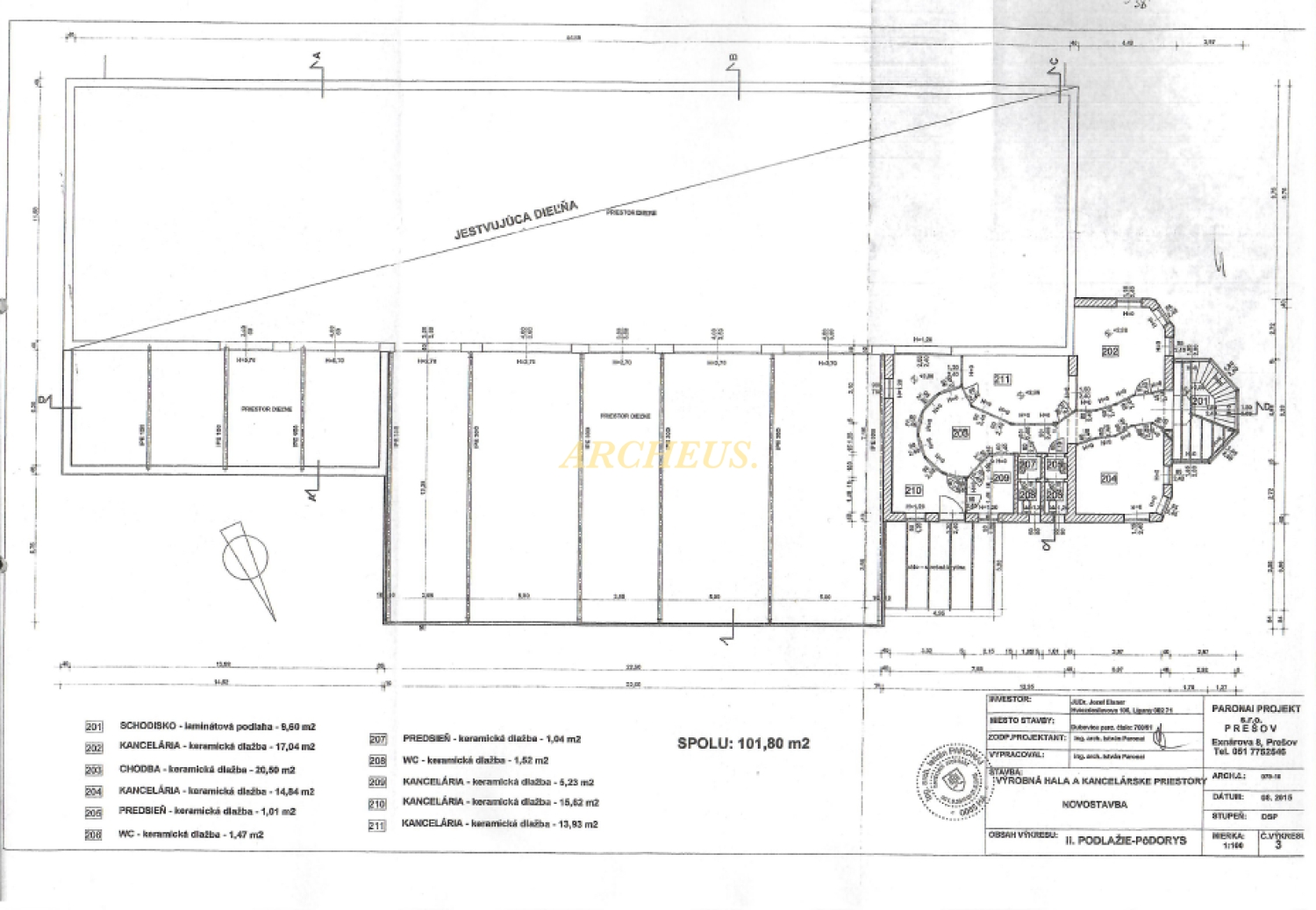
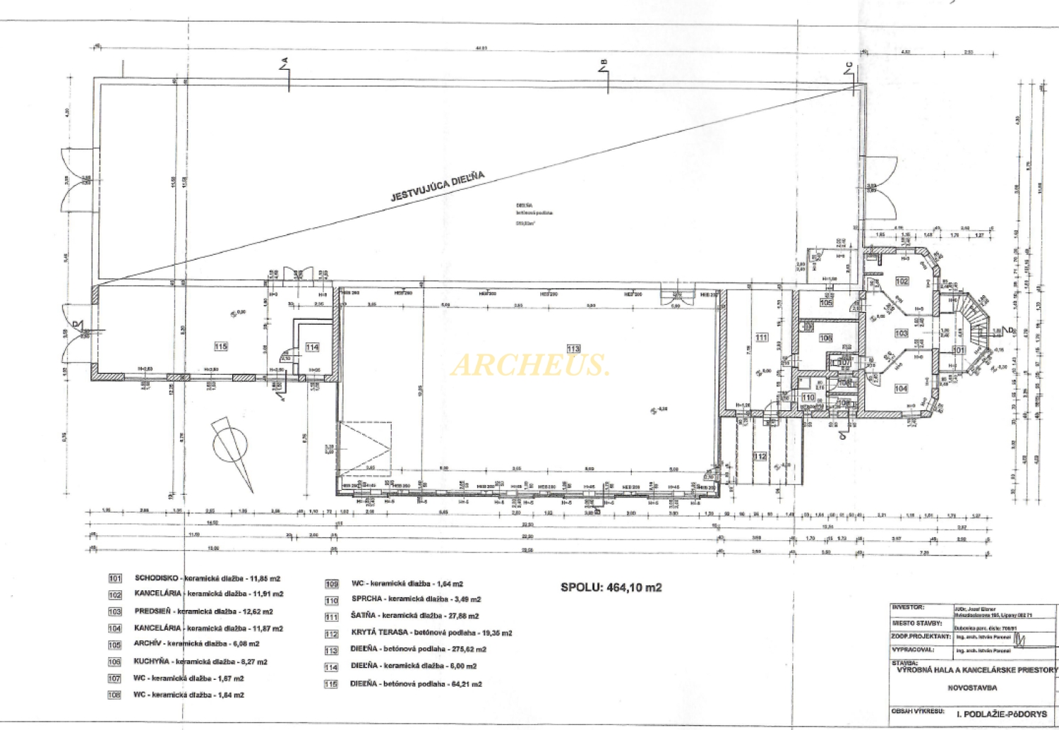
Administratívna budova (kolaudácia 2016)
Moderné kancelárske priestory s dvomi nadzemnými podlažiami.
Dispozícia:
1. NP:
- schodisko
- 2 kancelárie
- predsieň
- archív
- WC
2. NP:
- 2 kancelárie
- zasadacia miestnosť
- kuchynka
- predsieň
- archív
- 2× WC
Technické prevedenie:
- murovaná stavba (tehla 400 mm) so zateplením
- železobetónový strop
- kombinácia skla, oceľových rámov a hliníkových prvkov
- sedlová strecha, škridlová krytina
- plynové ústredné kúrenie (kotol Vaillant)
- elektroinštalácia 220/380 V
📐 Zastavaná plocha: cca 122,66 m² / podlažie
📏 Svetlá výška: 2,65 m
Výrobná hala
Veľkoplošná prejazdná hala vhodná na výrobu (aktuálne plastové okná a dvere).
- keramická podlaha
- denné aj umelé osvetlenie
- prirodzené vetranie
- plynové infražiariče
- výborná svetlá výška
📐 Zastavaná plocha: cca 289,43 m²
📏 Výška haly: 5,30 m
Budova nárezovne / skladová hala
- pôvodná stavba z roku 1970 + prístavba 2019
- oceľový montovaný skelet
- zateplená sedlová strecha (vlnitý plech)
- plastové okná
- elektricky ovládané vráta
- svetelná aj motorická elektroinštalácia
📐 Zastavaná plocha: cca 630,79 m²
📏 Výška haly: 6,74 m
Oplotenie
- betónové základy
- oceľové stĺpiky
- výplň: strojové pletivo
Kľúčové investičné benefity
- Kombinácia výroby, skladov a administratívy v jednom uzavretom areáli
- Možnosť okamžitého prenájmu bez potreby zásadných investícií
- Flexibilné využitie – výroba, logistika, ľahký priemysel, servisné centrum
- Stabilná priemyselná lokalita s existujúcou infraštruktúrou
- Možnosť rozdelenia areálu na samostatné prevádzkové celky
- Vysoké stropy a prejazdné haly – atraktívne pre nájomcov
- Dlhodobý rastový potenciál regiónu v oblasti ľahkého priemyslu a výroby
Link na 3D prehliadku: https://lnk.sk/agwv6
Kontakt
📞 Tel.: 0905 665 568
✉️ E-mail: soltys@archeus.sk
🏢 ARCHEUS – pobočka Prešov, Masarykova 4
Zabezpečujeme kompletné právne aj finančné poradenstvo.
Vaša spokojnosť a bezproblémový priebeh obchodu sú pre nás prioritou.
Zodpovedný maklér
Ing. Jaroslav Šoltys
tel.: 0905 665 568,
0910 685 759
e-mail: soltys@archeus.sk
Kontakt na pobočku
ARCHEUS reality Prešov
ulica: Masarykova 4
tel.: +421 918 880 008
e-mail: kontakt.po@archeus.sk
Zdieľať
Posledné referencie
Ďakujeme veľmi pekne za obhliadku nehnuteľnosti, o ktorú máme vážny záujem.
Ďakujeme aj za všetky informácie, všetko bolo v poriadku a veľmi dobré vysvetlené.. povedané... Ďakujeme ešte raz... Monika Hasarová
”












