NOVOSTAVBA-ČASŤ TROJDOMU S PEKNÝM POZEMKOM, LEHNICE-KOLÓNIA
| Číslo inzerátu: | DBBT0052BAE |
| Kraj: | Trnavský kraj |
| Obec: | Lehnice |
| Ulica: | Lehnice-Kolónia |
| Internet: | áno |
| Zateplenie: | áno |
| Parkovanie: | vlastné parkovacie miesta |
| Konštrukcia: | tehlová |
| Počet izieb: | 4 a 4,5 |
| Typ nehnuteľnosti: | rodinný dom |
| Stav nehnuteľnosti: | novostavba |
| Obytná plocha: | 123 m2 |
| Výmera pozemku: | 387 m2 |
| Mesačné náklady: | 180 € |
Popis nehnuteľnosti
Moderné bývanie 20 minút od Bratislavy: Váš nový domov v tichej oáze Lehníc
Hľadáte únik z mestského zhonu, no nechcete obetovať skvelú dostupnosť? Realitná kancelária ARCHEUS Vám ponúka na predaj čerstvo skolaudovanú novostavbu (marec 2026), ktorá spája modernú architektúru, energetickú efektivitu a pokoj vidieka.
Tento priestranný rodinný dom (časť obľúbeného trojdomu) s pekným pozemkom s výmerou až 387 m2 sa nachádza v novej, tichej štvrti obce Lehnice - časť Kolónia. Je stvorený pre rodinu, ktorá ocení kvalitné materiály, veľkorysý priestor a výhľady, ktoré Vás každé ráno nabijú energiou.
Čím Vás tento dom očarí?
Maximálny komfort: Najnovšia generácia tepelného čerpadla a podlahové kúrenie zaručujú nízke mesačné náklady a tepelnú pohodu.
Priestor pre život: Úžitková plocha 123 m² a šikovná dispozícia 4+1 ponúka dostatok súkromia pre každého člena rodiny.
Svetlo a záhrada: Z presvetlenej obývačky s kuchyňou vyjdete priamo na terasu - ideálne miesto pre vaše letné grilovačky.
Výborná poloha: Vďaka rýchlostnej ceste R7/D4 ste v Bratislave za 20 minút. Rovnako blízko máte Senec, Šamorín či Dunajskú Stredu.
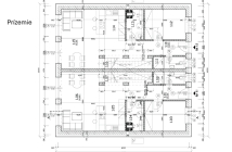
DISPOZÍCIA navrhnutá s rozumom
PRÍZEMIE (Denná časť):
Srdcom domu je otvorený priestor obývacej izby a kuchyne (takmer 30 m²) s priamym vstupom do záhrady. Nájdete tu aj hosťovskú izbu (alebo pracovňu), kúpeľňu so sprchovým kútom a praktickú technickú miestnosť.
POSCHODIE (Nočná časť):
Dve nadštandardne veľké spálne (19 m² a 21 m²) a kráľovská kúpeľňa (8,7 m²) zabezpečia pohodlie, aké v bežných bytoch nenájdete.
TECHNICKÉ PARAMETRE & Vyhotovenie
Dom sa predáva vo variante HOLODOM, alebo pre tých, ktorí sa chcú sťahovať bez starostí, ponúkame dokončenie do ŠTANDARDU (drevené parkety, dvere, sanita) len za doplatok 10.000 €
Pozemok: 387 m² (vlastná záhrada + parkovanie pre 2 autá)
Napojenie na inžinierske siete: elektrická prípojka, vodovodná prípojka, odvod odpadových vôd - žumpa
Vybavenie: Okná s izolačným trojsklom, príprava na klimatizáciu, optický internet
Lokalita: Lehnice sú modernou obcou, ktorá vďaka eurofondom neustále investuje do infraštruktúry a pohody svojich obyvateľov
Cena a podmienky
Cena domu v stave holodom: 216.300 €
(Cena je konečná, vrátane provízie, kompletného právneho servisu a poplatkov na katastri.) Zabezpečíme všetko potrebné vrátane profesionálneho právneho a hypotekárneho poradenstva až po odovzdanie nehnuteľnosti.
Nestrácajte čas hľadaním kompromisov. Príďte sa presvedčiť na vlastné oči, že Váš nový domov je už hotový a čaká práve na Vás!
Kontaktujte nás ešte dnes a dohodnite si obhliadku!
Ak máte záujem o obhliadku, prípadne potrebujete viac informácií kontaktujte ma na telefónnom čísle 0903 725 678 alebo emailom na duranova@archeus.sk.
Zodpovedný maklér
JUDr. Beáta Ďuranová
tel.: +421 903 725 678
e-mail: duranova@archeus.sk
Kontakt na pobočku
ARCHEUS Euroveatower Bratislava
ulica: Pribinova 38
tel.: +421 903 725 678
e-mail: bratislava@archeus.sk
Zdieľať
Posledné referencie
Ďakujem VEĽMI PEKNE za pomoc s prenájmom môjho bytu, za cenné rady aj ochotu, môžem len odporučiť.
Diana M.
”Podobné nehnuteľnosti
NOVOSTAVBA TROJDOMU S PEKNÝM POZEMKOM, LEHNICE-KOLÓNIA
190.550 € TICHÁ LOKALITA, VÝBORNÁ DISPOZÍCIA Novinka Lehnice
NOVOSTAVBA-ČASŤ TROJDOMU S PEKNÝM POZEMKOM, LEHNICE-KOLÓNIA
206.000 €
NOVOSTAVBA-ČASŤ TROJDOMU S PEKNÝM POZEMKOM, LEHNICE-KOLÓNIA
190.550 € TICHÁ LOKALITA, VÝBORNÁ DISPOZÍCIA Lehnice












