5 IZBOVÝ MEZONET, 320 M2, BRATISLAVA-STARÉ MESTO, BRNIANSKA
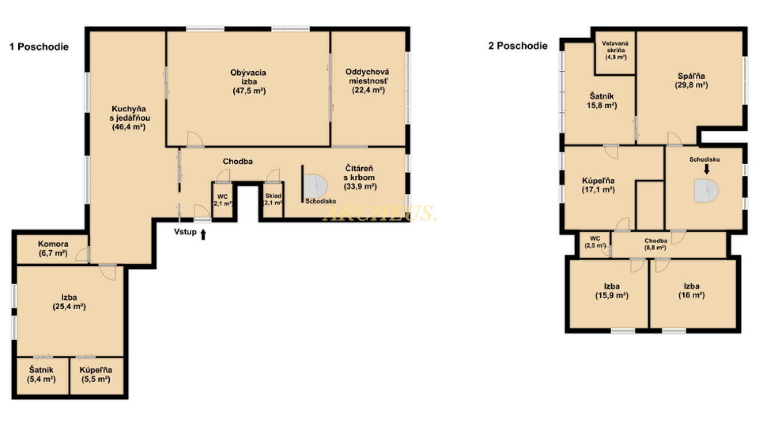
Pôdorys nehnuteľnosti
| Číslo inzerátu: | DBBT0048BAE |
| Kraj: | Bratislavský kraj |
| Obec: | Bratislava - Staré Mesto |
| Ulica: | Brnianska |
| Typ nehnuteľnosti: | Byty |
| Parkovanie: | vlastné parkovisko |
| Konštrukcia: | tehlová |
| Stav nehnuteľnosti: | čiastočná rekonštrukcia |
| Počet izieb: | 5 alebo viac |
| Rozloha: | 320 m2 |
| Poschodie: | 3/4 |
| Internet: | áno |
Popis nehnuteľnosti
Veľkorysý 5-izbový mezonet (320 m²) v Starom meste – Bývanie s dušou a nadhľadom!
Hľadáte nehnuteľnosť, ktorú definuje pojem PRIESTOR?
Realitná kancelária ARCHEUS ponúka na predaj výnimočný mezonet na Brnianskej ulici v lukratívnej časti Starého Mesta, len pár krokov od Horského parku. Tento byt nie je len miestom na bývanie, je to súkromná rezidencia v srdci Bratislavy.
Pozrite si prekliadku tejto výnimočnej nehnuteľnosti TU: https://realsee.ai/qjMMw7Al
ZÁKLADNÉ INFORMÁCIE:
• Úžitková plocha bytu: 319,82 m²
• Pivnica v suteréne: 9,4 m²
• Ďalší úložný priestor (nebytový priestor/pivnica na rovnakom poschodí oproti bytu): cca 20 m²
• Dispozícia: 5 izieb, zimná záhrada, čitáreň s krbom, 2x kúpeľňa, 3x WC
• Poschodie: 3. a 4. (mezonet)
• Orientácia: na všetky svetové strany
• Stav: Kompletná rekonštrukcia (vrátane strechy) v roku 2003
• Zimná záhrada: juhozápadná orientácia
• Mesačné náklady 350 eur zálohový predpis plus energie
• Tehlový bytový dom - zateplený
DISPOZÍCIA: Harmónia dennej a nočnej časti
Spodné podlažie (3. poschodie) – Centrum rodinného života:
Srdcom bytu je otvorený denný priestor, ktorý dýcha vzdušnosťou. Nájdete tu priestrannú obývačku prepojenú s jedálňou a kuchyňou na mieru so spotrebičmi Miele. Pre milovníkov relaxu je k dispozícii miestnosť s krbom (čitáreň) a presklená zimná záhrada orientovaná na juhozápad. Na tomto podlaží sa nachádza aj izba s vlastným šatníkom a kúpeľňou, ideálna aj pre hostí alebo ako súkromný apartmán a tiež technická miestnosť a samostatná toaleta.
Horné podlažie (Podkrovie) – Oáza pokoja:
Štýlové drevené schodisko s kovaným zábradlím Vás zavedie do súkromnej zóny. Dominuje jej master bedroom s vlastným veľkým šatníkom a veľkolepou podkrovnou kúpeľňou s vaňou aj sprchovým kútom. Dispozíciu dopĺňa tichá pracovňa, izba a samostatné WC.
ŠTANDARD A VYBAVENIE:
• kvalitné drevené podlahy
• drevené okná
• kuchyňa na mieru so spotrebičmi Miele
• klimatizácia v spálni
• bezpečnostné vchodové dvere
• krb
LOKALITA A PARKOVANIE:
Bývanie na Brnianskej spája výhody mesta a prírody. Horský park máte doslova na dosah ruky, čo zaručuje nekonečné možnosti pre šport a prechádzky. Centrum mesta je dostupné pešou chôdzou alebo krátkou jazdou MHD.
Parkovanie: K bytu prislúcha vyhradené parkovanie v súkromnom dvore. Pre náročnejších klientov je tu možnosť dokúpenia samostatnej garáže v tesnej blízkosti domu.
Zaujala Vás táto ponuka? Nezmeškajte príležitosť vlastniť nehnuteľnosť v jednej z najlepších lokalít Bratislavy!
Príďte sa presvedčiť o výnimočnosti tohto priestoru osobne. Kontaktujte nás a dohodnite si obhliadku ešte dnes.
Cena bytu je 759.000 EUR a je konečná, vrátane provízie a kompletného právneho a katastrálneho servisu.
Možnosť financovania aj cez hypotekárny úver, ktorý Vám bezplatne sprostredkujeme.
Ak máte záujem o obhliadku, prípadne potrebujete viac informácií kontaktujte ma na telefónnom čísle 0903 725 678 alebo emailom na duranova@archeus.sk.
Zodpovedný maklér
JUDr. Beáta Ďuranová
tel.: +421 903 725 678
e-mail: duranova@archeus.sk
Kontakt na pobočku
ARCHEUS Euroveatower Bratislava
ulica: Pribinova 38
tel.: +421 903 725 678
e-mail: bratislava@archeus.sk
Zdieľať
Posledné referencie
Ďakujem VEĽMI PEKNE za pomoc s prenájmom môjho bytu, za cenné rady aj ochotu, môžem len odporučiť.
Diana M.
”












